Το πρώτο ιδιωτικό αθλητικό σχολείο θέλουν να φτιάξουν στην περιοχή του Ύψωνα (βόρεια του νέου γηπέδου Λεμεσού) ιδιώτες. Το σχολείο θα είναι κατ' εξοχήν αθλητικό και θα έχει τις κατάλληλες υποδομές για να μπορεί να εξυπηρετεί του αθλητές-μαθητές του. Ξεχωρίζει το γεγονός ότι για πρώτη φορά γίνεται σχεδιασμός για να κατασκευαστεί και λειτουργήσει αθλητικό σχολείο όλων τα βαθμίδων, δηλαδή δημοτικού, γυμνασίου και λυκείου. Το συνολικό εμβαδό των τεμαχίων όπου θα αναπτυχθούν ανέρχεται σχεδόν στα 16.000m2 και εμπίπτει σε πολεοδομική ζώνη Γα4 – Αγροτική Ζώνη. Το έργο για την κατασκευή των κτηριακών εγκαταστάσεων βρίσκεται σε πορεία αδειοδότησης με την υποβολή της ειδικής οικολογικής αξιολόγησης για τις επιπτώσεις στο περιβάλλον. Η συνολική επένδυση θα ξεπεράσει όπως αναμένεται τα 12 εκατομμύρια ευρώ, ενώ ο χρόνος υλοποίησης και αποπεράτωσης του νέου σχολείου θα εξαρτηθεί από τη διαδικασία αδειοδότησης.
Σε δύο κτήρια
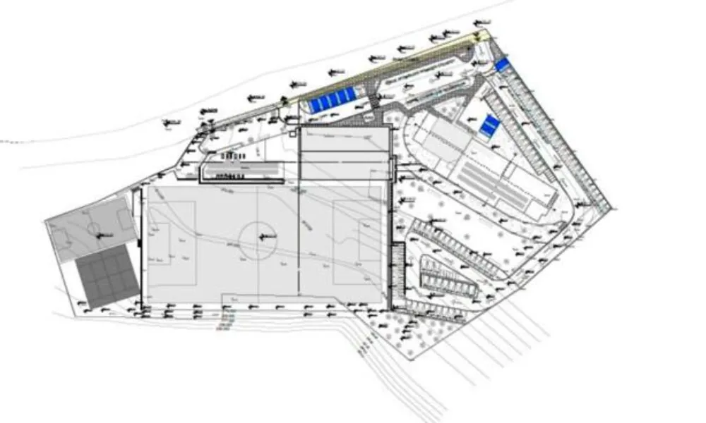
Όπως περιγράφεται στα έγγραφα που έχουν κατατεθεί, η επικείμενη ανάπτυξη θα αποτελείται από δύο κτήρια, το αθλητικό δημοτικό σχολείο και το αθλητικό γυμνάσιο-λύκειο. Το κτήριο που θα αφορά το δημοτικό σχολείο θα καταλαμβάνει έκταση 959m2 και θα αποτελείται από υπόγειο, ισόγειο και πρώτο όροφο. Στο υπόγειο θα βρίσκονται μεγάλη αίθουσα γυμναστηρίου (για όλες τις βαθμίδες) διαστάσεων 73X21m, αποδυτήρια, ιατρείο, αποθήκες και διάφορες άλλες μηχανολογικές υπηρεσίες. Στο ισόγειο θα βρίσκονται έξι αίθουσες διδασκαλίας, αίθουσα εργαστηρίων και μουσικές, καθώς και γραφεία για τους εκπαιδευτικούς. Στον 1ο όροφο θα ανεγερθούν εστιατόριο, κουζίνα, μεγάλη βεράντα, καθώς και δύο ακόμα αίθουσες διδασκαλίας.
Το κτήριο του γυμνασίου-λύκειου θα είναι λίγο μεγαλύτερο με 1.380m2. Στο υπόγειο θα κατασκευαστούν πισίνα, αίθουσα ξιφασκίας, αποδυτήρια, σάουνα και γραφεία. Στο ισόγειο θα βρίσκονται έξι αίθουσες διδασκαλίας και επιπλέον τρεις εργαστηριακές αίθουσες μαζί με αίθουσα εκδηλώσεων, αίθουσα διασκέψεων, γραφεία, εστιατόριο και άλλους χώρους. Όσον αφορά τον 1ο όροφο, θα υπάρχουν επίσης αίθουσες διδασκαλίας, εργαστήρια, αίθουσες υπολογιστών, βιβλιοθήκη καθώς και χώρος για συγκέντρωση των μαθητών.
Γήπεδα για όλα τα αθλήματα
Πέρα από τις εσωτερικές εγκαταστάσεις, όπως είναι αναμενόμενο για ένα αθλητικό σχολείο, προβλέπονται και σημαντικές υποδομές για αθλητικούς χώρους στους εξωτερικούς χώρους. Συγκεκριμένα, θα κατασκευαστεί ένα γήπεδο ποδοσφαίρου με φυσικό γρασίδι στις διαστάσεις 45Χ90M (λίγο πιο μικρό από τις κανονικές). Θα γίνουν επίσης δύο γήπεδα padel διαστάσεων 10x20m και ένα γήπεδο ποδοσφαίρου σάλας διαστάσεων 15x30m. Ταυτόχρονα θα κατασκευαστεί και καλυμμένο γήπεδο πολλαπλών χρήσεων με διαστάσεις 20.05Χ34.25 για καλαθόσφαιρα, πετόσφαιρα και άλλα αθλήματα.







